Fonteinland 7 E39 - Leeuwarden

Verhuurd
2016
53 m²
151 m³
1
Label B

Omschrijving

Op zoek naar een appartement in het centrum van Leeuwarden? Wellicht is dit nette appartement aan het Fonteinland en nabij het Westerpark iets voor u!

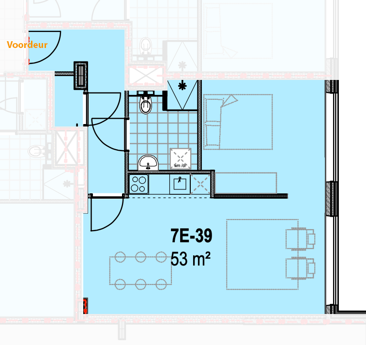
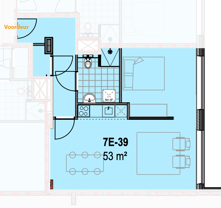
Naast een slaapkamer en een woonkamer is het appartement voorzien van een eigen badkamer, keuken en berging. Het appartement heeft een oppervlakte van circa 53 m² en bevindt zich op de tweede verdieping. Geluiden vanuit de omgeving zijn tot een minimum beperkt, vanwege de dubbel geïsoleerde wanden en een zwevende dekvloer.

Vanwege de veiligheid, alsmede energiebesparing, zullen alle voorzieningen in het gehele appartement volledig elektrisch zijn. Moderne infraroodpanelen verzorgen de verwarming. Ook bezit ieder appartement een eigen aansluiting voor wasmachine, droger, afwasmachine en internet/tv/telefoon. De keuken beschikt over een inductiekookplaat en een afzuigkap. De entree van het gebouw is beveiligd en elk appartement is voorzien van een eigen intercom met videosysteem.

In en rond het gebouw zijn verscheidene voorzieningen aanwezig. Zo is er een lift, fietsenberging en voldoende eigen parkeerruimte (tegen aanvullende betaling).

De huur van € 725,00 is exclusief voorschot servicekosten € 35,00 en exclusief voorschot energie € 70,00 (incl. waterverbruik). De bijgevoegde foto’s geven een beeld van het appartement, maar zijn niet van dit specifieke appartement.

Kenmerken

Overdracht

Prijs
Status Verhuurd
Status Per datum
Status 01-05-2022

Bouw

Soort object Appartement
Type woning Portiekflat
Hoofdfunctie Wonen
Kwaliteit woning Goed
Onderhoud binnen Goed
Bouwjaar periode 2016
Aanmelding In verhuur genomen

Oppervlaktes en inhoud

Woonoppervlakte 53 m²
Inhoud 151 m³

Indeling

Aantal kamers 2
Aantal slaapkamers 1
Aantal verdiepingen 1
Voorzieningen Lift

Energie

Energie label B

Tuin

Tuin Geen tuin
Onderhoud buiten Goed

Garage

Parkeer faciliteiten Betaald parkeren, vaste parkeerplaats te huur

Interesse?

Wilt u meer informatie of een bezichtiging plannen? Laat uw gegevens achter.